
Duplex appartement met 2-slpks, inpandige garage en terras!
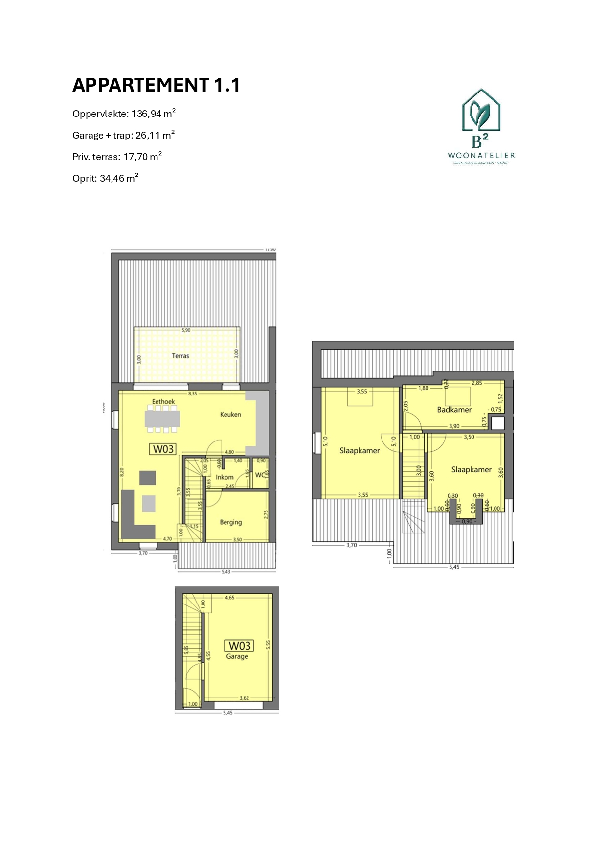
Appartement 1.1 is het linker-duplex-appartement en heeft op het gelijkvloers ( inpandige garage) + 1ste en 2de verdiep een bewoonbare oppervlakte van 136m² + 26 m² ( garage+ trap).
Het appartement heeft een privatieve inkom : via de voordeur bereikt men de trappenhal met rechts de inpandige garage om zo naar het woongedeelte te gaan.
Het appartement heeft een ruim terras (17m²) waar men geniet van de namiddag en avondzon.
Op de eerste verdieping heeft men een ruime berging, gastentoilet en vervolgens een zeer aangename leefruimte met open keuken. Van hieruit loopt men 's avonds in alle stilte het terras op om te genieten van de voorbije dag.
Op de 2de verdieping bevinden er zich 2 ruime slaapkamers en de badkamer.
Dit uniek woonappartement wordt volledig afgewerkt volgens smaak van de klant en is beschikbaar tegen februari 2026!
De warme architectuur en het voorzien van de laatste nieuwe technische voorzieningen geven zowel vanbuiten als binnenshuis warmte aan dit gezellige penthouse-appartement!
Pluspunten
* zalige ligging = rust en toch overal dichtbij
* elk appartement heeft een eigen inkom
* voldoende parkeergelegenheid : carport of inpandige garage
* quasi energie-neutraal!
* verwarming met warmtepomp en koeling!
* eigen zonnepanelen
* eigen energiebochten
* ventilatiesysteem D
* aluminium ramen
* hoogwaardige afwerking
* gelijkvloers : terras + tuin + tuinberging
* privacy
* vlakbij natuur en bossen
* vlakbij de winkelstraat van Heusden-Centrum
* goede verbinding naar de autosnelweg
* oplevering februari 2026!
* zien = kopen!
